krizek
Úvod Nabídky O nás SlužbyMakléři Kontakt
sipka dolevaZpět

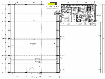
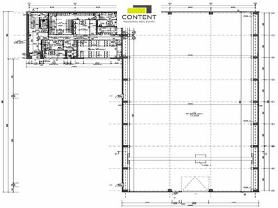
Pronájem výrobních prostor 1898 m², Brno

ID 7175
Sdíletikona sdílení
Přidat do srovnávače
Popis
Pronájem výrobních prostor se zázemím v Brně Líšni.
V zastoupení majitele a bez provize nabízíme výrobní prostory umístěně v nově vznikajícím výrobně - logistickém parku v Brně.

- k nastěhování Q4/2026
- výrobní hala o půdorysné ploše 1898 m²
- instalované patky na mostový jeřáb o nosnosti 5 tun
- světlá výška 10 m, pojezdová dráha je ve výšce 8 metrů
- bezprašné podlahy s nosností 5t/m²
- 2x Drive IN pro možnost vjezdu nákladních aut do haly
- všechny IS k dispozici
- Příkon elektřiny 3x240A

- kanceláře, showroom a sociální zázemí o celkové velikosti až 894 m²
- vhodné jako sídlo společnosti
- výborná dostupnost pro osobní i nákladní dopravu
- dálnice D1 cca 3km
- MHD a občanská vybavenost je v docházkové vzdálenosti cca. 360 m

Cena je individuální dle konkrétních podmínek smlouvy.
Pro více informací nás kontaktujte.
Lokalita
Líšeň, Jihomoravský kraj, 62800, Česká republika
Cena
Cena na vyžádání
ikona odeslání Poslat nezávaznou poptávku
ikona okresu Okres
Brno-město
ikona užitné plochy Užitná plocha
1 898 m²
ikona dálnice Dálnice
D1, D2
ikona čisté výšky Čistá výška
10 m
ikona nosnosti Nosnost podlahy
5 t
ikona mostového jeřábu Mostový jeřáb
5 t
ikona přímého vjezdu Přímý vjezd
Ano
ikona vytápění Vytápění
Ano
ikona kanceláří Kanceláře / zázemí
Ano
ikona energetického štítku Energetický štítek
Ano
Nezávazná poptávka

Pokud máte jakýkoliv dotaz ohledně našich nemovitostí, tak nás neváhejte kontaktovat. Rádi Vám s čímkoliv poradíme.

Odeslat ikona odeslání