Popis
Pronájem výrobních prostor se zázemím v Brně Líšni.
V zastoupení majitele a bez provize nabízíme výrobní prostory umístěně v nově vznikajícím výrobně - logistickém parku v Brně.
- k nastěhování Q4/2026
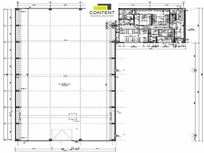
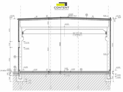
- výrobní hala o půdorysné ploše 1067 m²
- instalované patky na mostový jeřáb o nosnosti 5 tun
- světlá výška 10 m, pojezdová dráha je ve výšce 8 metrů
- bezprašné podlahy s nosností 5t/m²
- 1x Drive IN pro možnost vjezdu nákladních aut do haly
- všechny IS k dispozici
- Dostatečný příkon elektřiny
- kanceláře, showroom a sociální zázemí o celkové velikosti až 480 m²
- vhodné jako sídlo společnosti
- 20 parkovacích míst před halou
- výborná dostupnost pro osobní i nákladní dopravu
- dálnice D1 cca 3km
- MHD a občanská vybavenost je v docházkové vzdálenosti cca. 360 m
Cena je individuální dle konkrétních podmínek smlouvy.
Pro více informací nás kontaktujte.
Lokalita
Líšeň, Jihomoravský kraj, 62800, Česká republika