krizek
Úvod Nabídky O nás SlužbyMakléři Kontakt
sipka dolevaZpět

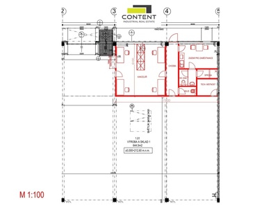
Pronájem skladu, výrobních prostor 874 m², Mladá Boleslav

ID 6080
Sdíletikona sdílení
Přidat do srovnávače
Popis
Pronájem skladu, výrobních prostor 874 m² Mladá Boleslav.
Exkluzivně a bez provize nabízíme novostavbu skladu nebo výrobních prostor o výměře až 1690 m², umístěných v nově vznikajícím průmyslovo-retailovém areálu Ptáček: topení-voda-plyn a Koupelny Ptáček. Areál je přímo u dálnice D10, exit 44 v blízkosti nákupního centra Olympia Mladá Boleslav.

- k dispozici ihned
- prostory ve stavu Shell & Core,
- možnost vlastní konfigurace sociálního zázemí a kanceláří,
- dostupné 2 jednotky 874 m², 816 m² - jednotky jsou propojitelné
- světlá výška 9 m,
- nosnost podlahy minimálně 5 t/m²,
- každá jednotka disponuje 3x přímým vjezdem,
- vytápěné a zateplené prostory, elektřina,
- dostatečné parkovací a manipulační plochy v rámci areálu,
- není možnost hydraulické rampy,
- další úpravy možné dle přání a potřeb konkrétního klienta.

Cena na vyžádání.
Fotografie vnitřních prostor jsou pouze ilustrativní. Pro více informací nás kontaktujte, rádi zodpovíme Vaše dotazy.
Lokalita
Řepov, Středočeský kraj, 29301, Česko
Cena
Cena na vyžádání
ikona odeslání Poslat nezávaznou poptávku
ikona okresu Okres
Mladá Boleslav
ikona užitné plochy Užitná plocha
874 m²
ikona dálnice Dálnice
D10
ikona čisté výšky Čistá výška
9 m
ikona nosnosti Nosnost podlahy
5 t
ikona přímého vjezdu Přímý vjezd
Ano
ikona vytápění Vytápění
Ano
ikona kanceláří Kanceláře / zázemí
Ano
ikona skladu v přízemí Sklad v přízemí
Ano
Nezávazná poptávka

Pokud máte jakýkoliv dotaz ohledně našich nemovitostí, tak nás neváhejte kontaktovat. Rádi Vám s čímkoliv poradíme.

Odeslat ikona odeslání