krizek
Úvod Nabídky O nás SlužbyMakléři Kontakt
sipka dolevaZpět

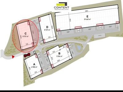
Pronájem skladu, výrobních prostor 8 727 m², Plzeň - Myslinka, D5

ID 6225
Sdíletikona sdílení
Přidat do srovnávače
Popis
Pronájem skladu, výrobních prostor Plzeň - Myslinka.
V zastoupení majitele a bez provize nabízíme industriální prostory pro sklad nebo výrobu o velikosti 8727 m², v lokalitě Plzeň - Myslinka, D5 EXIT 93, formou výstavby budovy na míru, umístěné v novém komerčním parku.

- k dispozici ihned
- velikost kanceláří je variabilní dle potřeby
- drive-in a hydraulické rampy
- světlá výška 11,5 m
- bezprašná podlaha s nosností minimálně 5 t/m²
- možnost přizpůsobení vnitřních prostor i budovy požadavkům nájemce
- zastávka autobusu, osobní i cargo vlakové nádraží v dosahu
- v areálu k dispozici prostory od 3500 m² do 29469 m² pod jednou střechou

Cena je individuální, dle smluvních podmínek.
Fotografie jsou pouze ilustrativní. Pro více informací nás kontaktujte, rádi zodpovíme Vaše dotazy.
Lokalita
Myslinka, Plzeňský kraj, 33023, Česko
Cena
Cena na vyžádání
ikona odeslání Poslat nezávaznou poptávku
ikona okresu Okres
Plzeň-sever
ikona užitné plochy Užitná plocha
8 727 m²
ikona dálnice Dálnice
D5
ikona čisté výšky Čistá výška
11 m
ikona nosnosti Nosnost podlahy
5 t
ikona hydraulické rampy Hydraulická rampa
Ano
ikona přímého vjezdu Přímý vjezd
Ano
ikona vytápění Vytápění
Ano
ikona kanceláří Kanceláře / zázemí
Ano
ikona skladu v přízemí Sklad v přízemí
Ano
Nezávazná poptávka

Pokud máte jakýkoliv dotaz ohledně našich nemovitostí, tak nás neváhejte kontaktovat. Rádi Vám s čímkoliv poradíme.

Odeslat ikona odeslání