krizek
Úvod Nabídky O nás SlužbyMakléři Kontakt
sipka dolevaZpět

Pronájem skladu, výrobních prostor 1 416 m², Tuchoměřice, Praha - Západ

ID 6021
Sdíletikona sdílení
Přidat do srovnávače
Popis
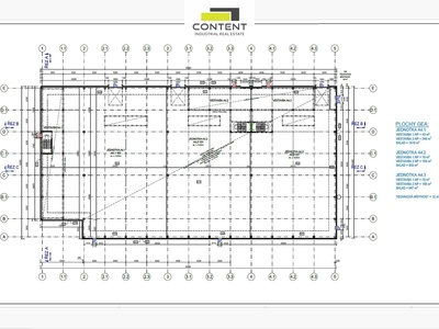
Pronájem skladu, výrobních prostor 1416 m² Tuchoměřice.
V zastoupení majitele a bez provize nabízíme industriální prostory vhodné pro sklad nebo výrobu, umístěné na strategickém místě nedaleko Letiště Václava Havla, s výbornou dostupností na dálnici D7 a do Prahy.

- výrobní prostory, logistické centrum, sídla firem, výzkumné prostory, školící centra a kanceláře
- hala (A4) 3296 m² ve výstavbě, k dispozici 02/2026
- světlá výška od 5 m
- nosnost podlahy minimálně 5 t/m²
- 3 vjezdy v úrovni vozovky
- LED osvětlení, sprinklery
- moderní, úsporná budova s certifikátem udržitelnosti BREEAM
- kancelářské a sociální zázemí dle potřeby
- objekt je možné rozdělit na samostatné jednotky:
• 947 m² skladové plochy + kanceláře
• 933 m² skladové plochy + kanceláře
• 1 416 m² skladové plochy + kanceláře
- oplocený areál s ostrahou

Cena bude stanovena dle dalších požadavků individuálně.
Fotografie jsou pouze ilustrativní. Pro více informací nás kontaktujte.
Lokalita
Tuchoměřice, Středočeský kraj, 25267, Česká republika
Cena
Cena na vyžádání
ikona odeslání Poslat nezávaznou poptávku
ikona okresu Okres
Praha-západ
ikona užitné plochy Užitná plocha
1 416 m²
ikona dálnice Dálnice
D7
ikona čisté výšky Čistá výška
5 m
ikona nosnosti Nosnost podlahy
5 t
ikona hydraulické rampy Hydraulická rampa
Ano
ikona přímého vjezdu Přímý vjezd
Ano
ikona vytápění Vytápění
Ano
ikona kanceláří Kanceláře / zázemí
Ano
ikona skladu v přízemí Sklad v přízemí
Ano
Nezávazná poptávka

Pokud máte jakýkoliv dotaz ohledně našich nemovitostí, tak nás neváhejte kontaktovat. Rádi Vám s čímkoliv poradíme.

Odeslat ikona odeslání