krizek
Úvod Nabídky O nás SlužbyMakléři Kontakt
sipka dolevaZpět

Pronájem skladu, výrobních prostor 1 000 m², Tuchoměřice, Praha - Západ

ID 6219
Sdíletikona sdílení
Přidat do srovnávače
Popis
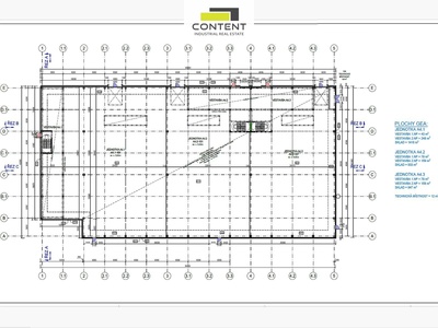
Pronájem skladu, výrobních prostor 1000 m² Tuchoměřice.
V zastoupení majitele a bez provize nabízíme industriální prostory, umístěné na strategickém místě nedaleko Letiště Václava Havla, s výbornou dostupností na dálnici D7 a do Prahy:

- výrobní prostory, logistické centrum, sídla firem, výzkumné prostory, školící centra a kanceláře
- volná část budovy D1/D2 2889 m² ve výstavbě, k dispozici 02/2026
- světlá výška 11,2 m
- nosnost podlahy minimálně 5 t/m²
- nákladová rampa, přímý vjezd
- LED osvětlení, sprinklery
- moderní, úsporná budova s certifikátem udržitelnosti BREEAM
- kancelářské a sociální zázemí dle požadavku
- sprinklery
- lze rozdělit na menší samostatné jednotky od cca 1000m² + kanceláře
- oplocený areál s ostrahou
- v areálu ještě k dispozici jednotka 3296 m²

Cena bude stanovena dle dalších požadavků individuálně.
Fotografie jsou pouze ilustrační. Pro více informací nás kontaktujte.
Lokalita
Tuchoměřice, Středočeský kraj, 25267, Česká republika
Cena
Cena na vyžádání
ikona odeslání Poslat nezávaznou poptávku
ikona okresu Okres
Praha-západ
ikona užitné plochy Užitná plocha
1 000 m²
ikona dálnice Dálnice
D7
ikona čisté výšky Čistá výška
11 m
ikona nosnosti Nosnost podlahy
5 t
ikona hydraulické rampy Hydraulická rampa
Ano
ikona přímého vjezdu Přímý vjezd
Ano
ikona vytápění Vytápění
Ano
ikona kanceláří Kanceláře / zázemí
Ano
ikona skladu v přízemí Sklad v přízemí
Ano
Nezávazná poptávka

Pokud máte jakýkoliv dotaz ohledně našich nemovitostí, tak nás neváhejte kontaktovat. Rádi Vám s čímkoliv poradíme.

Odeslat ikona odeslání