krizek
Úvod Nabídky O nás SlužbyMakléři Kontakt
sipka dolevaZpět

Pronájem skladu nebo výrobních prostor 2513 m², Plzeň - Doubravka

ID 6081
Sdíletikona sdílení
Přidat do srovnávače
Popis
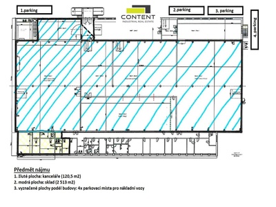
Pronájem skladu, výrobních prostor 2513 m² Plzeň - Doubravka.
V zastoupení majitele a bez provize nabízíme industriální prostory vhodné pro sklad nebo výrobu o velikosti 2513 m², umístěné v průmyslovém areálu, nedaleko dálnice D5, EXIT 67.

- k dispozici od 12/2025 (budova 4),
- nosnost podlahy 5 t/m²,
- výška stropu 5 m,
- vjezdy v úrovni vozovky, vstup z rampy,
- kancelářské a soc. zázemí celkem až 378 m²,
- parkování i manipulace i pro nákladní vozy,
- zastávka MHD, vlakové nádraží v blízkosti,


Cena k jednání: nájemné sklady: 110 Kč/m²/měsíc, nájemné kanceláře: 250 Kč/m²/měsíc + poplatky za údržbu areálu: 19 Kč/m², spotřeba energií dle vlastní spotřeby.
Pro více informací nás kontaktujte, rádi Vám zajistíme prohlídku nemovitosti.
Lokalita
Doubravka, Plzeňský kraj, 31200, Česká republika
Cena
110 Kč m2
ikona odeslání Poslat nezávaznou poptávku
ikona okresu Okres
Plzeň-město
ikona užitné plochy Užitná plocha
2 513 m²
ikona dálnice Dálnice
D5
ikona čisté výšky Čistá výška
5 m
ikona nosnosti Nosnost podlahy
5 t
ikona hydraulické rampy Hydraulická rampa
Ano
ikona vytápění Vytápění
Ano
ikona kanceláří Kanceláře / zázemí
Ano
Nezávazná poptávka

Pokud máte jakýkoliv dotaz ohledně našich nemovitostí, tak nás neváhejte kontaktovat. Rádi Vám s čímkoliv poradíme.

Odeslat ikona odeslání