krizek
Úvod Nabídky O nás SlužbyMakléři Kontakt
sipka dolevaZpět

Pronájem sídla společnosti, skladové a prodejní prostory 1154 m² Hodkovice - Vestec.

ID 6075
Sdíletikona sdílení
Přidat do srovnávače
Popis
Pronájem sídla společnosti, skladové a prodejní prostory 1154 m², Hodkovice - Vestec
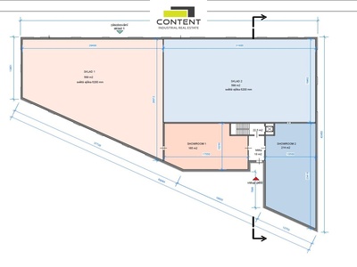
Nabízíme pronájem poloviny komerční budovy s užitnou plochou až 1154 m², vhodnou jako sídlo společnosti se skladovými, prodejními a kancelářskými prostory. Jedná se o reprezentativní nově vznikající komerční zónu poblíž pražského okruhu. Budovu lze flexibilně rozdělit a pronajmout dle potřeby nájemce.

- industriální budova ve výstavbě, termín dokončení dle jednání s nájemci
- samostatná skladová jednotka 589 m²
- samostatný showroom v přízemí objektu 165 m²
- samostatné kanceláře 352 m²
- sociální zázemí zázemí 48 m²
- střešní terasa 80 m²
- 40 parkovacích míst
- světlá výška skladu 6,2 m
- zásobování TIR, vjezdy v úrovni vozovky, výška vrat 4m
- nosnost podlah ve skladu 5t/m²
- zateplené, vytápěné prostory
- možnost kompletního dokončení prostor / budovy na klíč nájemcům
- v budově lze pronajmout až 2357 m² (obě poloviny

Cena skladových prostor EUR 8,50 za m²/měsíc, kanceláře, showroomy a zázemí EUR 12,50 za m²/měsíc + služby a energie.
Fotografie jsou ilustrativní. Pro více informací nás kontaktujte, rádi zodpovíme Vaše dotazy.
Lokalita
Hodkovice, Středočeský kraj, 25241, Česká republika
Cena
Cena na vyžádání
ikona odeslání Poslat nezávaznou poptávku
ikona okresu Okres
Praha-západ
ikona užitné plochy Užitná plocha
1 154 m²
ikona dálnice Dálnice
D0, D1
ikona čisté výšky Čistá výška
6 m
ikona nosnosti Nosnost podlahy
5 t
ikona přímého vjezdu Přímý vjezd
Ano
ikona vytápění Vytápění
Ano
ikona kanceláří Kanceláře / zázemí
Ano
ikona skladu v přízemí Sklad v přízemí
Ano
Nezávazná poptávka

Pokud máte jakýkoliv dotaz ohledně našich nemovitostí, tak nás neváhejte kontaktovat. Rádi Vám s čímkoliv poradíme.

Odeslat ikona odeslání