krizek
Úvod Nabídky O nás SlužbyMakléři Kontakt
sipka dolevaZpět

Pronájem obchodně skladových prostor 395 m², Dobřejovice

ID 6064
Sdíletikona sdílení
Přidat do srovnávače
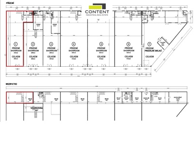
Popis
Dobřejovice. V zastoupení majitele a bez provize nabízíme prodejní skladové prostory 395 m², které se nachází v novém komerčním parku na okraji obce Dobřejovice. V těsné blízkosti dálnice D1 a městského okruhu D0. Vzdálenost k dálničnímu nájezdu na D1 2,5 km a vzdálenost nájezdu D0 je 5,0 km.

- k dispozici od 01.01. 2026
- showroom, prodejna, kanceláře a sklady
- přízemí se zázemím a sprchou 303 m²
- vestavěné patro v zadní části prostoru 92 m²
- vnitřní světlá výška skladu 6,2 m
- průmyslová bezprašná podlaha
- stěny PUR panel tl. 100 mm, U=0,2 W/m²K
- tepelně izolovaná střecha, střešní okna
- čelní prosklená výloha s vchodem a další samostatný vchod pro zásobování zezadu
- vytápění / klimatizace TČ s podstropními jednotkami
- celková plocha prostoru je 395 m²
- parkoviště pro zákazníky

Cena nájmu je 249,-Kč/m²/měsíc + záloha na zúčtovatelné poplatky za služby 19,- Kč/m²/měsíc.
Pro více informací nás kontaktujte, rádi Vám zajistíme prohlídku nemovitosti.
Lokalita
Dobřejovice, Středočeský kraj, 25101, Česko
Cena
249 Kč m2
Servisní poplatky
služby a energie dle spotřeby
ikona odeslání Poslat nezávaznou poptávku
ikona okresu Okres
Praha-východ
ikona užitné plochy Užitná plocha
395 m²
ikona dálnice Dálnice
D0, D1
ikona čisté výšky Čistá výška
6 m
ikona nosnosti Nosnost podlahy
5 t
ikona přímého vjezdu Přímý vjezd
Ano
ikona vytápění Vytápění
Ano
ikona kanceláří Kanceláře / zázemí
Ano
ikona skladu v přízemí Sklad v přízemí
Ano
ikona energetického štítku Energetický štítek
Ano
Nezávazná poptávka

Pokud máte jakýkoliv dotaz ohledně našich nemovitostí, tak nás neváhejte kontaktovat. Rádi Vám s čímkoliv poradíme.

Odeslat ikona odeslání