krizek
Úvod Nabídky O nás SlužbyMakléři Kontakt
sipka dolevaZpět

Pronájem novostavby skladu, výrobních prostor 570 m², Plzeň 4

ID 6203
Sdíletikona sdílení
Přidat do srovnávače
Popis
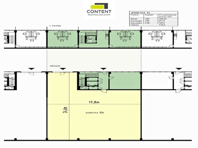
Pronájem obchodních, skladových nebo výrobních prostor 570 m² – Plzeň 4, Jateční ulice.

V zastoupení majitele a bez provize nabízíme samostatnou jednotku o výměře 570 m² v nově vznikajícím areálu Nová Jateční vedle plně obsazeného retail parku Intercora. Prostory se nachází na velmi dobře viditelném místě z frekventované ulice Jateční a zároveň na budoucím východním obchvatu Plzně, což zajišťuje vynikající dopravní dostupnost i obchodní exponovanost.

- celková plocha jednotky 570 m² (k dispozici 1Q/2027 – hala A)
- sklad / výroba: cca 370 m²
- obchodní prostor / showroom + kanceláře: cca 200 m²
- světlá výška 7,5–8 m
- kanceláře lze upravit na míru dle požadavků nájemce
- parkovací místa přímo před jednotkou
- bezprašné podlahy s minimální nosností 5 t/m²
- přímý vjezd z úrovně terénu
- možnost dispozičních úprav podle potřeb klienta
- MHD v docházkové vzdálenosti, v areálu plánované nabíjecí stanice
- možnost instalace FVE
- BREAM Excellent
- v areálu jsou k dispozici další skladové a obchodní jednotky o velikosti od 570 m² až po 4870 m²

Cena za sklad, prodejnu nebo showroom na dotaz.
V případě zájmu nás kontaktujte, rádi zodpovíme Vaše dotazy.
Lokalita
Východní Předměstí, Plzeňský kraj, 30100, Česká republika
Cena
Cena na vyžádání
ikona odeslání Poslat nezávaznou poptávku
ikona okresu Okres
Plzeň-město
ikona užitné plochy Užitná plocha
570 m²
ikona dálnice Dálnice
D5
ikona čisté výšky Čistá výška
8 m
ikona nosnosti Nosnost podlahy
5 t
ikona přímého vjezdu Přímý vjezd
Ano
ikona vytápění Vytápění
Ano
ikona kanceláří Kanceláře / zázemí
Ano
ikona skladu v přízemí Sklad v přízemí
Ano
ikona energetického štítku Energetický štítek
Ano
Nezávazná poptávka

Pokud máte jakýkoliv dotaz ohledně našich nemovitostí, tak nás neváhejte kontaktovat. Rádi Vám s čímkoliv poradíme.

Odeslat ikona odeslání