krizek
Úvod Nabídky O nás SlužbyMakléři Kontakt
sipka dolevaZpět

Pronájem kancelářských prostor 165 m², Praha - Malešice

ID 2023
Sdíletikona sdílení
Přidat do srovnávače
Popis
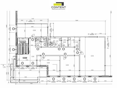
Pronájem kancelářských prostor Praha 10 - Malešice.
V zastoupení majitele a bez provize nabízíme kancelářské prostory o velikosti 164,8 m², umístěné v rámci komerční budovy s jednoduchým napojením na Pražský okruh D0.

- k dispozici ihned
- kanceláře 109,5 m²
- sociální zázemí a ostatní 55,3 m²
- klimatizace, vytápění
- plně vybavená kuchyňka
- přístup do budovy 24/7
- parkování k dispozici v areálu

Cena nájmu na dotaz.
Pro více informací nás kontaktujte, rádi Vám zajistíme prohlídku nemovitosti.
Lokalita
Praha, Hlavní město Praha, 10800, Česko
Cena
Cena na vyžádání
ikona odeslání Poslat nezávaznou poptávku
ikona okresu Okres
Hlavní město Praha
ikona užitné plochy Užitná plocha
165 m²
ikona čisté výšky Čistá výška
10 m
ikona nosnosti Nosnost podlahy
5 t
ikona vytápění Vytápění
Ano
ikona kanceláří Kanceláře / zázemí
Ano
Nezávazná poptávka

Pokud máte jakýkoliv dotaz ohledně našich nemovitostí, tak nás neváhejte kontaktovat. Rádi Vám s čímkoliv poradíme.

Odeslat ikona odeslání