krizek
Úvod Nabídky O nás SlužbyMakléři Kontakt
sipka dolevaZpět

Prodej komerčního pozemku 6 000 m², Varnsdorf

ID 1535
Sdíletikona sdílení
Přidat do srovnávače
Popis
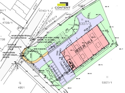
Varnsdorf, Plzeňská ulice. V exkluzivním zastoupení majitele a bez provize nabízíme prodej komerčního pozemku s celkovou výměrou 6000 m².

- připravený na komerční výstavbu prodejní haly
- u frekventované silnice u hranice s Německem
- rovinatý pozemek se studií na výstavbu obchodní haly s kancelářemi a zázemím, s celkovou plochou cca 1000 m²
- parkovací místa pro zákazníky i zaměstnance
- kompletní inženýrské sítě na hranici pozemku

Pro více informací nás kontaktujte, rádi zodpovíme Vaše dotazy.
Lokalita
Varnsdorf, Ústecký kraj, 40747, Česko
Cena
Cena na vyžádání
ikona odeslání Poslat nezávaznou poptávku
ikona okresu Okres
Děčín
ikona užitné plochy Užitná plocha
6 000 m²
ikona přímého vjezdu Přímý vjezd
Ano
ikona skladu v přízemí Sklad v přízemí
Ano
Nezávazná poptávka

Pokud máte jakýkoliv dotaz ohledně našich nemovitostí, tak nás neváhejte kontaktovat. Rádi Vám s čímkoliv poradíme.

Odeslat ikona odeslání